
111 S GREENFIELD Road #547 Mesa, AZ 85206
1 Bed
2 Baths
808 SqFt
UPDATED:
Key Details
Property Type Mobile Home
Sub Type Mfg/Mobile Housing
Listing Status Active
Purchase Type For Sale
Square Footage 808 sqft
Price per Sqft $206
Subdivision Greenfield Village Resort
MLS Listing ID 6868689
Bedrooms 1
HOA Fees $804/qua
HOA Y/N Yes
Year Built 1988
Annual Tax Amount $389
Tax Year 2024
Lot Size 2,053 Sqft
Acres 0.05
Property Sub-Type Mfg/Mobile Housing
Source Arizona Regional Multiple Listing Service (ARMLS)
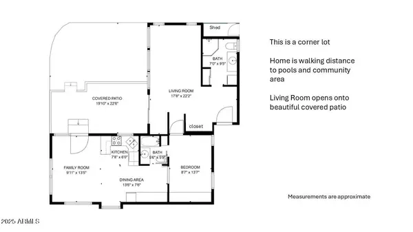
Property Description
Location
State AZ
County Maricopa
Community Greenfield Village Resort
Area Maricopa
Direction Greenfield Village Resort. Enter off S Quinn and E Main St. From guard shack, R on Villager Blvd, L on Damian Drive, last house on right, corner of Resort Ave and Damien Dr
Rooms
Other Rooms Arizona RoomLanai
Den/Bedroom Plus 1
Separate Den/Office N
Interior
Interior Features High Speed Internet, Eat-in Kitchen, Furnished(See Rmrks), Vaulted Ceiling(s), Pantry, Full Bth Master Bdrm, Laminate Counters
Heating Electric
Cooling Central Air
Flooring Carpet, Laminate, Tile
Window Features Skylight(s),Dual Pane
Appliance Electric Cooktop
SPA None
Exterior
Parking Features Permit Required
Carport Spaces 1
Fence None
Pool None
Community Features Pickleball, Gated, Community Spa Htd, Near Bus Stop, Community Media Room, Coin-Op Laundry, Guarded Entry, Tennis Court(s), Fitness Center
Utilities Available SRP
Roof Type Composition
Porch Covered Patio(s)
Private Pool No
Building
Lot Description Gravel/Stone Front, Gravel/Stone Back
Story 1
Sewer Public Sewer
Water City Water
New Construction No
Schools
Elementary Schools Adult
Middle Schools Adult
High Schools Adult
School District Adult
Others
HOA Name Greenfield Village
HOA Fee Include Maintenance Grounds,Street Maint,Trash,Water
Senior Community Yes
Tax ID 140-33-551
Ownership Fee Simple
Acceptable Financing Cash, Conventional, VA Loan
Horse Property N
Disclosures Seller Discl Avail
Possession Close Of Escrow
Listing Terms Cash, Conventional, VA Loan
Special Listing Condition Age Restricted (See Remarks)

Copyright 2025 Arizona Regional Multiple Listing Service, Inc. All rights reserved.






